新築・中古住宅の購入
長野市 稲田4丁目(北長野駅) 3階建 3LDK2,980万円(税込)

バス:浴室乾燥機、追焚機能
トイレ:温水洗浄便座、トイレ2ヶ所
キッチン:カウンターキッチン、オープンキッチン、食器洗浄乾燥機、IHクッキングヒーター、3口以上コンロ
設備: 全居室収納、クローゼット、モニター付インターホン、ディンプルキー、全居室フローリング、上水道、下水道、電気、エアコン、照明器具、火災警報器(報知機)、インターネット対応、複層ガラス
物件担当者のお勧めおポイント
炎を使わず空気やキッチンを汚さないオール電化仕様、更に配膳がラクなカウンターキッチン仕様なので、食後の片付けも楽ちんです。
広々とした延床面積91.07㎡の居室空間、更に遮る壁がなくスペースが広々と感じられるオープンキッチン仕様。また住居の全体像やリフォーム履歴が把握できる新築時・増改築時の設計図書有で、その上エコ意識が自然と高まるオール電化仕様なので、光熱費が一本化され家計の見直しにも重宝します。ちなみに一度に複数のおかず作りを同時進行できるコンロ3口以上付です。家族が帰宅を焦がれる3LDK。実際の空間をご自身で体感ください。
こちらの物件は現在建築中ですが、類似物件のモデルルームをご案内可能です。間取りの広さや設備の使い勝手、室内の質感などを実際にご覧いただけるため、ご購入前に具体的な生活イメージを持ってご検討いただけます。ぜひ一度モデルルームもご見学ください☆
物件の基本情報
- 物件の住所
- 長野県長野市稲田4丁目
- 所在地
- 長野県長野市稲田4丁目
- 物件種別
- 新築一戸建て
- 交通
- しなの鉄道北しなの / 北長野駅 徒歩18分
- 駐車台数
- 2台分
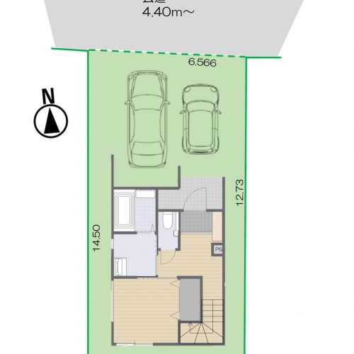
- 土地面積
- 88.85㎡(坪)
- 建物面積
- 91.07㎡(坪)
- 接道状況
- 北 4.4m 接面6.5m
- 建物構造
- 木造
- 間取り
- 3LDK
- 建築年月
- 2025年11月
- 都市計画
- 市街化区域
- 用途地域
- 準工業
- 建ぺい率
- 60%
- 容積率
- 200%
- 地目
- 宅地
- 土地権利
- 所有権
- 水道
- 公共上水
- 排水
- 公共下水
- ガス
- ー
- 電気
- 中部電力
- 現況
- 建築中
- 引渡時期
- 2025年11月下旬予定
- 取引形態
- 媒介
- 仲介手数料
- 売買代金の3.3%+6.6万円が別途かかります。
- 小学校
- 長野市立徳間小学校 / 徒歩19分 / 1,541m
- 中学校
- 長野市東北中学校 / 徒歩0分 / 0m
- 周辺施設
-
デリシア吉田店 距離:1,204m
ツルヤ徳間店 距離:1,346m
ローソン長野稲田三丁目店 距離:883m
長野市立徳間小学校 距離:1,541m
かざぐるま保育園 距離:861m
地方独立行政法人長野市民病院 距離:2,151m
辰巳公園 距離:963m
- 備考
-
主要採光面:南向き
新築時・増改築時の設計図書あり




